
La cohérence d’un projet urbain par la scénographie
Création d’un « tapis piéton » permettant de découvrir l’ensemble de la ville et son patrimoine.
Conception et mise en place un plan de circulation rigoureux.
Regroupement les parkings aux portes de la ville, facilement accessibles, pour favoriser les cheminements guidés.
- Aménagement des espaces publics du centre-ville de Saint-Jean-Pied-de-Port
- MONTANT DES TRAVAUX : 2 M€ HT
- MAITRE D’OUVRAGE : Ville de Saint-Jean-pied-de-Port
- PARTENAIRES : Projetec
- SUPERFICIE : 7 700 m²
- CONCOURS 2004 : non lauréat
EN SAVOIR +
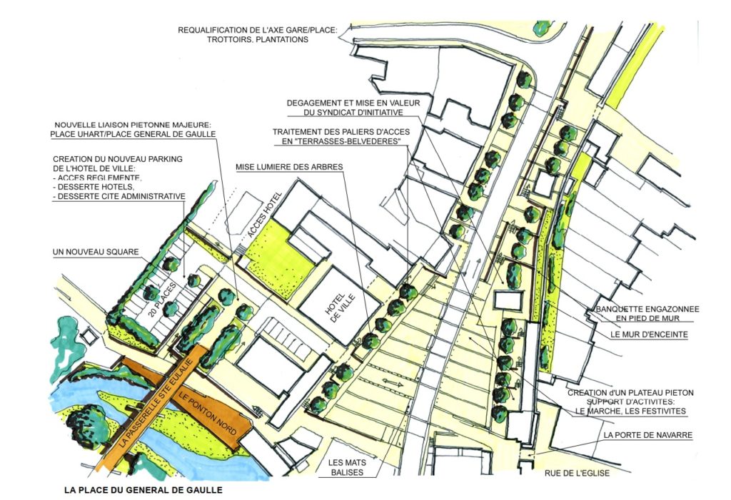
Ville étape incontournable sur le chemin de Compostelle et dont le centre historique est classé au patrimoine de l’UNESCO, Saint Jean Pied de Port n’offrait pas d’espaces publics à la hauteur de sa réputation. Coupée par le passage de la route départementale, occupée par du stationnement non organisé, dotée de limites peu perceptibles, la ville offrait une image dévalorisée.
Les propositions élaborées par l’agence GAU obéissent aux grands principes d’aménagement suivants :
- Création de deux vastes parvis piétonniers de part et d’autre de la voie centrale, traitée en plateau
- Nivellement de l’ensemble de l’espace pour une meilleure accessibilité et lisibilité
- Rétablissement de deux zones de stationnement et d’arrêts-minutes pour les commerces
- Aménagement d’aires de stationnement extérieures et d’une passerelle pour l’accès des piétons au-dessus de la Nive
- L’encadrement des espaces piétonniers est traité en grès de la Ruhr, dans la continuité du cœur historique. Les zones circulées de la place centrale sont réalisées en béton désactivé.





